新築一戸建
ブルーライン 片倉町
ブルーライン 片倉町駅 徒歩 20分 この駅が最寄り駅の物件一覧を見る
横浜線 小机駅 徒歩 24分
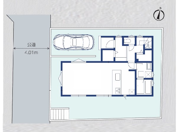
東側に建物なく開放的 南側に広いお庭 シューズイン、ウォークインなど収納充実 水回り集中し家事動線良好

| 学区 |
菅田の丘小学校 菅田中学校 →この学区の物件一覧を見る |
|---|---|
| 用途地域 | 第一種低層住居専用地域 |
| 地目 | 宅地 |
| 建ぺい率 | 40% |
| 容積率 | 80% |
| 駐車場 | 有り カースペース |
| 接道 | 西4m |
| 権利 | 所有権 |
| 私道面積 | 無し |
|---|---|
| セットバック | 無し |
| 建物構造 | 木造 |
| 建物階数 | 2階 |
| 築年月 | 2025/10 |
| 入居日 | 即時 |
| 建築確認番号 | 第24KAK建確04291号 |
| 都市計画 | 市街化区域 |
| 取引態様 | 仲介 |
| 物件番号 | P0905 |
|---|---|
| 設備 | 都市ガス、公営水道、下水、宅配ロッカー、省エネルギー対策、外壁サイディング、駐車場1台、整形地、緑豊かな住宅地、閑静な住宅地、都市近郊、地盤調査済、市街地が近い、隣家との間隔が大きい、周辺交通量少なめ、スーパーが近い(10分以内)、2沿線以上利用可、総合病院徒歩10分以内、公園5分以内、シューズインクローク、ウォークインクローゼット、対面キッチン、都市ガス、整形地、眺望良好、システムキッチン、カウンターキッチン、対面キッチン、食器洗浄機、浄水器、ユニットバス、追い焚き、浴室乾燥機、ウォシュレット、オートバス付き、トイレ2ヶ所、浴室1坪以上、浴室に窓、浴室暖房、バルコニー、南面バルコニー、2階建、LDK15畳以上、採光3面、南面3室、南向き、フローリング、スマートキー、クローゼット、ウォークインクローゼット、収納、床下収納、下駄箱、全居室収納、洗面室収納、シューズインクローク、シャンプドレッサー付き、南庭、10以上の庭、フラット35Sに対応、年内入居可、モニタ付きインターフォン、ペアガラス、ディンプルキー、火災警報器、通風良好、陽当り良好、眺望良好、24時間換気システム、建物10年保証 |
| 特記事項 | 壁面後退:有/宅地造成工事規制区域:有/高度地区:有/日影制限:有/敷地内段差:有/敷地面積最低限度:有/高さ限度:有/緑化地域 建築基準法第22条による区域 建築物再生可能エネルギー利用促進区域 横浜市建築基準条例第3条による制限有。 / |
| 備考 | 東側に建物なく開放的 南側に広いお庭 シューズイン、ウォークインなど収納充実 水回り集中し家事動線良好 |