新築一戸建
京浜急行本線 杉田
京浜急行本線 杉田駅 徒歩 9分 この駅が最寄り駅の物件一覧を見る
根岸線 新杉田駅 徒歩 15分
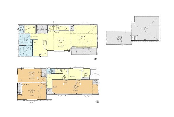
京急本線「杉田」駅から徒歩9分。収納に心強い小屋裏収納有。プライバシーに配慮した2階リビング。納戸もお部屋としてご利用いただけます。

| 学区 |
杉田小学校 →この学区の物件一覧を見る 浜中学校 →この学区の物件一覧を見る |
|---|---|
| 用途地域 | 第一種低層住居専用地域 |
| 地目 | 宅地 |
| 建ぺい率 | 50% |
| 容積率 | 100% |
| 駐車場 | 有り カースペース |
| 接道 | 東6m |
| 権利 | 所有権 |
| 私道面積 | 無し |
|---|---|
| セットバック | 無し |
| 建物構造 | 木造 |
| 建物階数 | 2階 |
| 築年月 | 2025/12 |
| 入居日 | 2026/01 |
| 建築確認番号 | 第25UDI1K建00604号 |
| 都市計画 | 市街化区域 |
| 取引態様 | 仲介 |
| 物件番号 | 46700-1 |
|---|---|
| 設備 | 都市ガス、公営水道、下水、駐車場1台、緑豊かな住宅地、閑静な住宅地、前道6m以上、2沿線以上利用可、中学校徒歩10分以内、公園5分以内、対面キッチン、パントリー、都市ガス、システムキッチン、ガス3口、対面キッチン、I型キッチン、パントリー(食器・食品の収納庫)、ユニットバス、追い焚き、ウォシュレット、トイレ2ヶ所、浴室1坪以上、浴室に窓、暖房便座、浴室暖房、バルコニー、南面バルコニー、2階建、LDK20畳以上、屋根裏収納、採光2面、フローリング、リビング階段、クローゼット、収納、下駄箱、全居室収納、シャンプドレッサー付き、モニタ付きインターフォン、陽当り良好、24時間換気システム、建物10年保証、勾配天井 |
| 特記事項 | 不整形地 宅地造成工事規制区域 高度地区 準防火地域 日影制限 敷地面積最低限度 建物高さ10m以下 建築基準法第22条区域 横浜市建築基準条例第3条による制限有 建物建築・再建築の際、防護壁の設置、高基礎、外壁後退等の対策が必要となる場合があります 不整形地:有/宅地造成工事規制区域:有/高度地区:有/準防火地域:有/日影制限:有/敷地面積最低限度:有/高さ限度:有/建築基準法第22条区域 横浜市建築基準条例第3条による制限有 建物建築・再建築の際、防護壁の設置、高基礎、外壁後退等の対策が必要となる場合があります。 / |
| 備考 | 京急本線「杉田」駅から徒歩9分。収納に心強い小屋裏収納有。プライバシーに配慮した2階リビング。納戸もお部屋としてご利用いただけます。 |